7 North View, Chirk, Wrexham, LL14 5HU

  • Unconditional Online Auction Sale
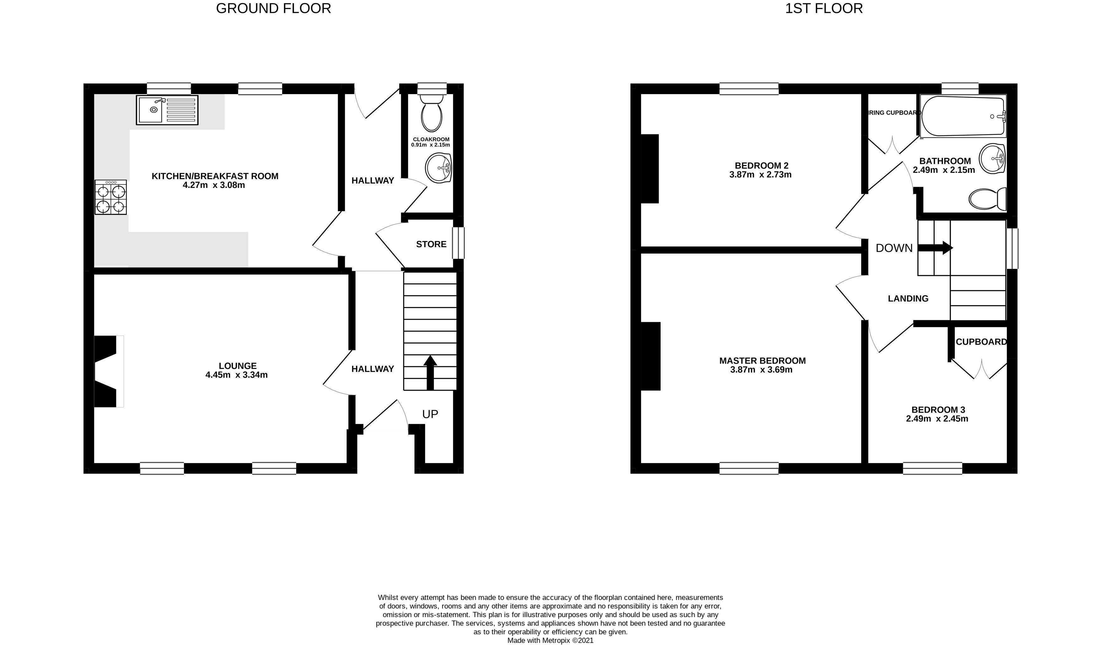
  • Bedrooms: 3

GUIDE PRICE - EXCESS £100,000. FOR SALE BY ONLINE AUCTION - 8TH JULY 2021.

Description

A spacious three bedroom semi detached property set within a generously sized corner plot in an established residential development. The property requires a scheme of modernisation and improvement with great potential for purchasers to tailor the living accommodation in line with their requirements.

The property will be offered for sale by online auction with bidding commencing at 9.00am on Thursday 8th July 2021. The submission of bids will then be possible until 3.00pm that day when the auction will close. If at the close of bidding the property has met its reserve price then exchange of contracts is deemed to have taken place. A security deposit set at £2,400 is then paid by the successful purchaser. Completion is set for 28 days thereafter or earlier by agreement - see contract for details.

* Generally speaking Guide Prices are provided as an indication of each seller's minimum expectation, i.e. 'The Reserve'. They are not necessarily figures which a property will sell for and may change at any time prior to the auction. Virtually every property will be offered subject to a Reserve (a figure below which the Auctioneer cannot sell the property during the auction) which we expect will be set within the Guide Range or no more than 10% above a single figure Guide.

Loading the bidding panel...

Agreement Documents

Related Documents

Make an Enquiry

Submit an enquiry and someone will be in contact shortly.

 
*  
*  
*
*
*

Share