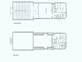
For sale by public online auction Friday 28th April 2023. A substantial former Chapel which during recent years has been refurbished and substantially extended to provide a community facility. It is highly capable of adaptation for a variety of uses including part residential, subject to any necessary planning consents. Located in the Hamlet of Halton, Chirk, having excellent communications from nearby to all local centres.
To the front of the property there is the highway, at the side a vehicular access with possible linear parking, and to the rear a landscaped easy access garden with planters set behind railway sleeper style beds interspersed with matching seating and central Pergola.  The whole adjoins rural farmland.  The nearest access-point onto the A483 dual carriageway lies only a short distance away, affording speedy access to all local centres.
Mains water, electricity and foul drainage are understood to be connected to the property subject to statutory regulations.
The entire property is currently let under the terms of a license agreement.  If a purchaser requires the vendors to serve notice on the tenant to terminate the occupation, the vendors are willing to serve such notice following exchange of contracts.  The tenancy can be terminated with immediate effect.
Please note that the purchasers will be responsible for paying a buyer's premium in addition to the purchase price set at 2.5% of the eventual sale price plus VAT. 
From the City of Wrexham proceed on the A483 dual carriageway in the direction of Oswestry eventually arriving at the Halton roundabout (by McDonalds).  Turn left.  Bear left for Black Park and continue until the property is observed on the right-hand side.
* Generally speaking Guide Prices are provided as an indication of each seller's minimum expectation, i.e. 'The Reserve'. They are not necessarily figures which a property will sell for and may change at any time prior to the auction. Virtually every property will be offered subject to a Reserve (a figure below which the Auctioneer cannot sell the property during the auction) which we expect will be set within the Guide Range or no more than 10% above a single figure Guide.
Submit an enquiry and someone will be in contact shortly.
By setting a proxy bid, the system will automatically bid on your behalf to maintain your position as the highest bidder, up to your proxy bid amount. If you are outbid, you will be notified via email so you can opt to increase your bid if you so choose.
If two of more users place identical bids, the bid that was placed first takes precedence, and this includes proxy bids.
Another bidder placed an automatic proxy bid greater or equal to the bid you have just placed. You will need to bid again to stand a chance of winning.